VODICE – NOVOGRADNJA – Dvojna kuća S1
Na izuzetno mirnoj i traženoj lokaciji u Vodicama prodaje se moderna dvojna kuća s garažom i bazenom, savršena kako za turistički najam visoke kategorije, tako i za udoban obiteljski život tijekom cijele godine.
Osnovni detalji
Opis
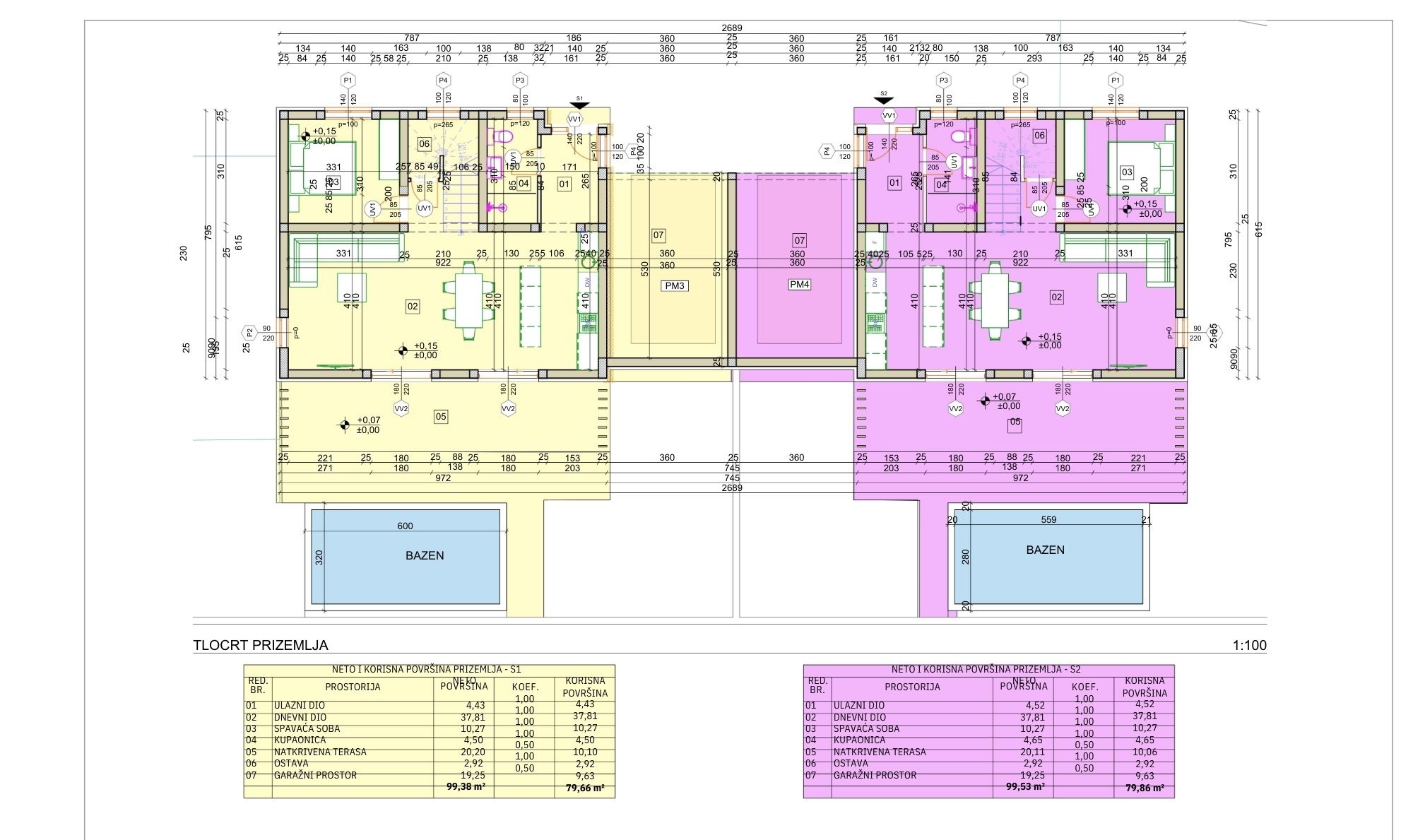
Kuća ima ukupnu korisnu stambenu površinu od 157,51 m², raspoređenu na dvije etaže, s naglaskom na komfor, privatnost i potencijal za turistički najam.
-Prizemlje (79,66 m²) sastoji se od:ulaznog prostora, spavaće sobe, kupaonice, ostave,otvorenog dnevnog dijela s izlazom na natkrivenu terasu od 20,20 m². Garaža površine 19,25 m².
-Kat (77,85 m²) uključuje:hodnik i stubište, kupaonicu, master spavaću sobu s vlastitom kupaonicom i dvije dodatne spavaće sobe. Natkrivena terasa od 19,99 m²
prohodnu terasu iznad garaže (18,25 m²) – dodatna vrijednost za goste ili privatno uživanje.
Pažljivo uređen vanjski prostor uključuje bazen od 19m2 s elektrolizom soli, idealan za bezbrižno uživanje tijekom toplih ljetnih dana. Uz kuću dolazi jedno garažno parkirno mjesto, te jedno dodatno vanjsko parkirno mjesto.
Dvorište će biti dijelom popločano kamenom, a dijelom ostavljeno u zelenilu.
Kuća se gradi kvalitetnim materijalima, modernog je dizajna i bit će opremljena prema najnovijim standardima novogradnje, što jamči dugoročnu vrijednost i visoku isplativost ulaganja.
Zahvaljujući blizini centra (cca 700m) i mora (cca 800 m), ova nekretnina predstavlja odličnu priliku za turistički najam s visokom stopom popunjenosti, ali i za osobno korištenje.
Planirani rok useljenja: ožujak 2026. godine.

























