VODICE – NOVOGRADNJA – KUĆA S2
Na izuzetno mirnoj i traženoj lokaciji u Vodicama prodaje se moderna dvojna kuća s garažom i bazenom, savršena kako za turistički najam visoke kategorije, tako i za udoban obiteljski život tijekom cijele godine.
Osnovni detalji
Opis
Kuća ima ukupnu korisnu stambenu površinu 157,64 m², raspoređena na prizemlje i kat, s funkcionalnim rasporedom koji maksimalno koristi svaki kvadrat.
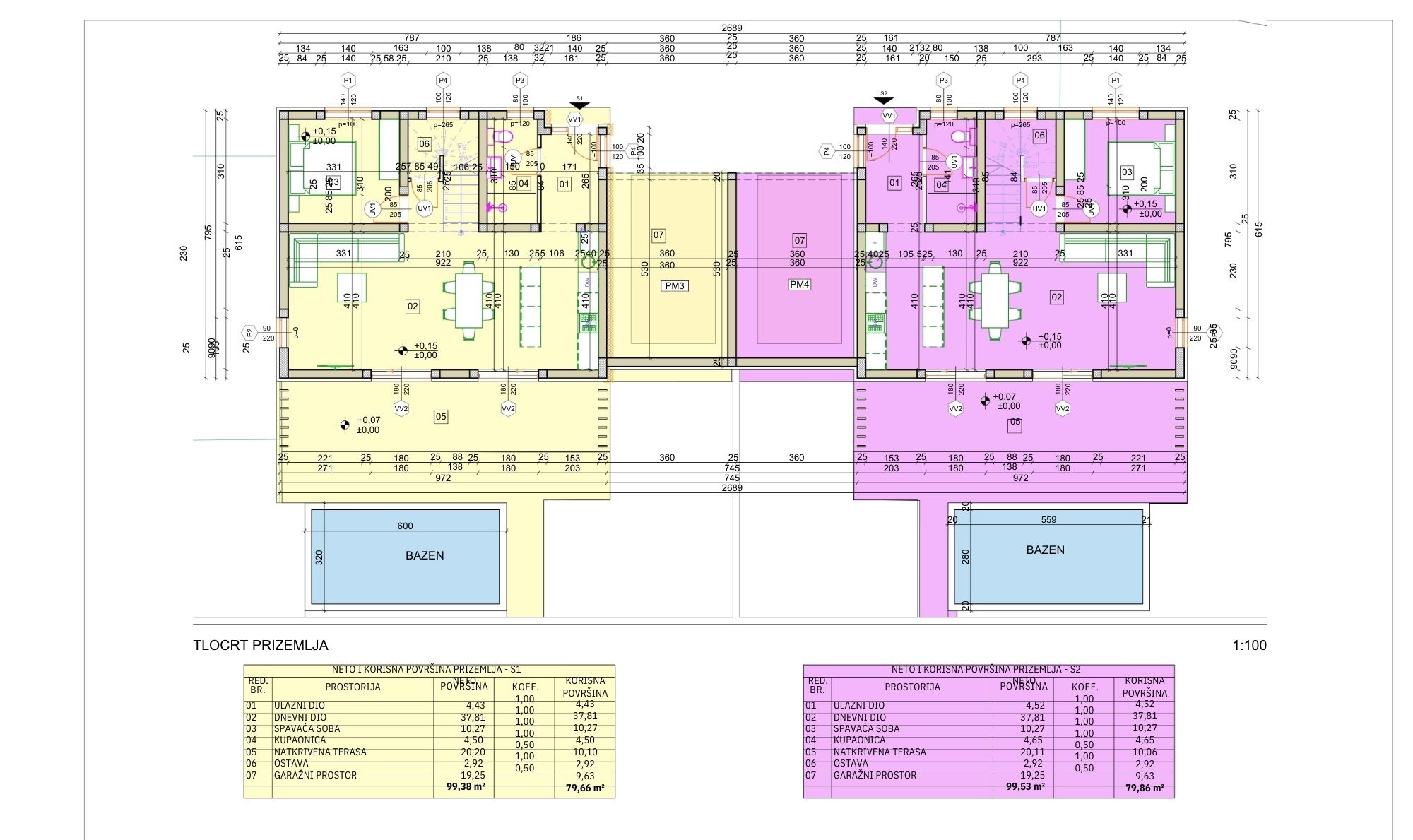
-Prizemlje (79,86 m²) obuhvaća: ulazni prostor, spavaću sobu (idealnu za goste ili najam), kupaonicu
ostavu, otvoreni dnevni prostor s izlazom na natkrivenu terasu od 20,11 m² idealnu za druženja i opuštanje i garaža površine 19,25 m²
-Kat (77,78 m²) sastoji se od: hodnika i stubišta, kupaonice, master spavaće sobe s vlastitom kupaonicom
dvije dodatne spavaće sobe, natkrivene terase od 20,22 m²
prohodne terase iznad garaže (17,47 m²) – savršene za sunčalište ili lounge zonu
Prostrana okućnica od 200m2 pruža savršenu ravnotežu između privatnosti i komfora. Pažljivo uređen vanjski prostor uključuje bazen od 19m2 s elektrolizom soli, idealan za bezbrižno uživanje tijekom toplih ljetnih dana. Uz kuću dolazi jedno garažno parkirno mjesto, te jedno vanjsko parkirno mjesto.
Dvorište će biti dijelom popločano kamenom, a dijelom ostavljeno u zelenilu.
Kuća se gradi kvalitetnim materijalima, modernog je dizajna i bit će opremljena prema najnovijim standardima novogradnje, što jamči dugoročnu vrijednost i visoku isplativost ulaganja.
Zahvaljujući blizini centra (cca 700m) i mora (cca 800 m), ova nekretnina predstavlja odličnu priliku za turistički najam s visokom stopom popunjenosti, ali i za osobno korištenje.
Planirani rok useljenja: ožujak 2026. godine.













